UNIT 3

Scroll to explore

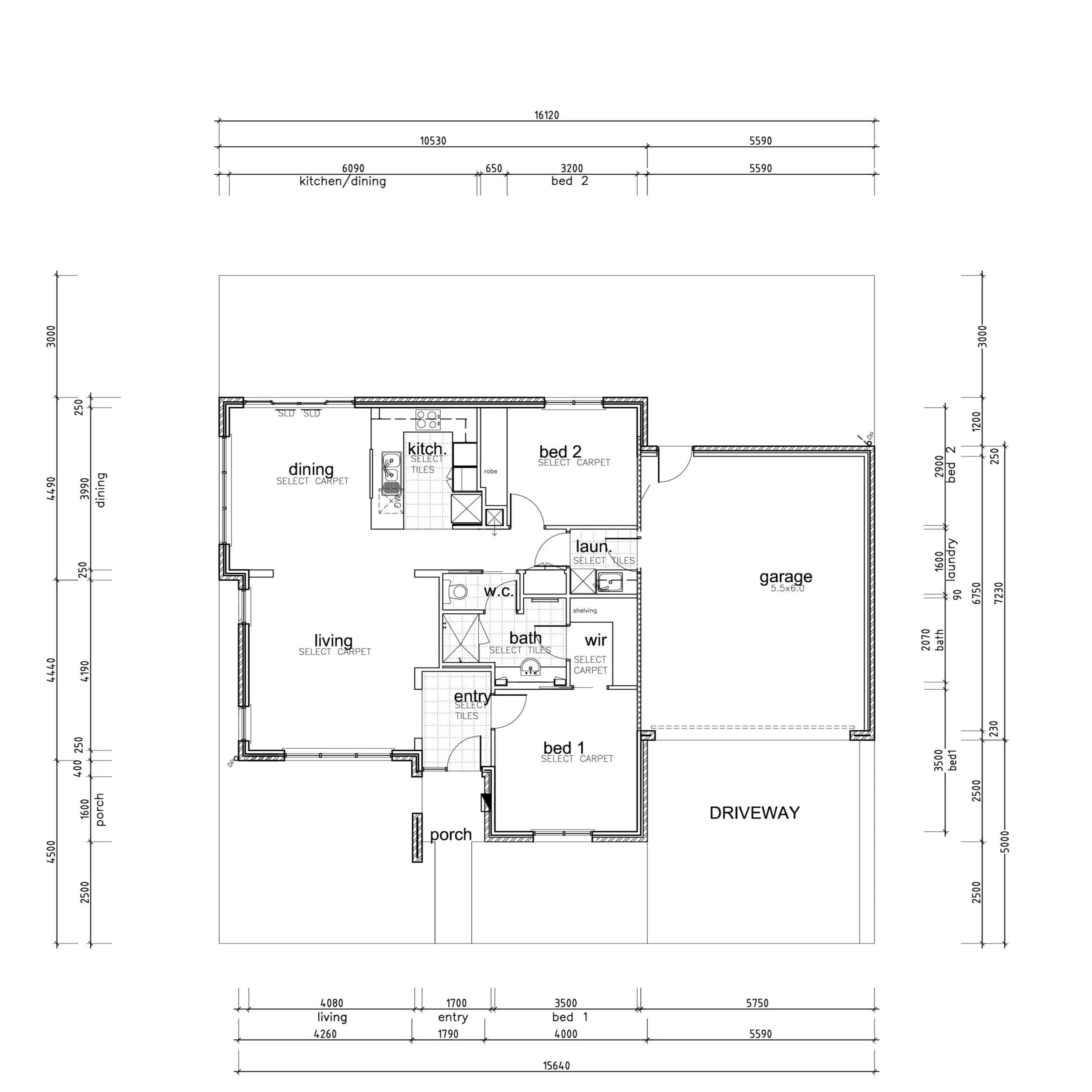
1 BathROOM

2 BEDROOM

2 GARAGE

Indulge in the open-plan lifestyle of this exquisite 2-bedroom unit with a double car garage, featuring Richfield's captivating Randwick design. Brimming with intricate details and natural light, this distinctive dwelling provides all the modern comforts within a meticulously refurbished structure.

 

Feature Include:

Fully-equipped kitchen with floor tiles and a beautiful Caesar stone bench top

Open floor living and dining area

Spacious master bedroom with walk-in robe and ensuite

Second bedroom with built in wardrobe

Gas ducted heating & split system air conditioning

Fully landscaped garden

Laundry with storage cupboards

Double car garage with driveway

Richly detailed and filled with light, these unique residences offer all of the gracious conveniences of modern living inside a beautifully renovated historic building. A mix of original architecture, reclaimed materials and cutting edge interior design, they come with stories to tell—but also with room for you to tell your own. Available for immediate occupancy.

 
Get in touch